随着配电网规模增大,架空线路上的故障也更加频繁复杂。这其中经常出现的故障是 单相接地,此类情况占所有故障事件中的 75%以上。所以,单相故障也是我们主要的研究 情况之一;另外,相间短路或接地单路也是配电网可能会发生的情况,并且其影响较为严 重。因此这也是本课题的重点内容。
2.1 单相接地故障
所有非正常情况中单相接地故障的概率最高,因此本文也将着重进行分析讲解。
2.1.1 中性点不接地系统
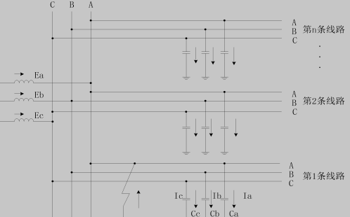
根据论文上面的描述,从而得知故障时结构图。因此中性点不接地系统出现单相接地 后的原理图如图 2-1:

图 2-1 中性点不接地系统单相接地故障原理图
由图可知,每一相都有电流通过电容流入大地,方向为远离母线的方向;而故障处也 有电流流过,就是故障电流。来.自/751论|文-网www.751com.cn/
(1) 故障时的零序电流 在供电系统中架空电缆和地之间相当于电容,因此每条线对地都由电容电流。当中性
点不接地系统中发生单相接地故障时,故障相对地的电容电流为零。因此正常相 B、C 对 地的电容电流则会经短路处构成回路
MATLAB的6~35KV电网故障分析研究(4):http://www.751com.cn/zidonghua/lunwen_74100.html
